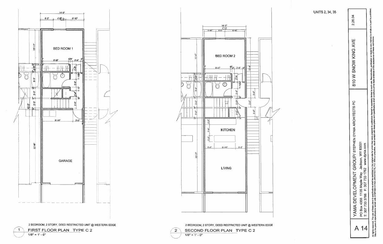
848 W. Snow King Avenue, Unit #35
Closed 4/30/2019. Sale Price $243,810
848 W, Snow King Avenue, Unit #35
2- bedroom, 2- bathroom, 1,092 square feet, 1 car garage, range, refrigerator, dishwasher, washer & dryer, 1 pet allowed.
Sales Price: $243,810
Workforce ownership unit - see eligibility requirements, below.
Occupancy Requirement: One (1) or two (2) adults with one (1) or more dependents
Deadline to Apply: Tuesday, March 5, 2019 by 4:00 p.m. No late or incomplete entries will be accepted.
We understand that our applications to enter into the weighted drawing take time and effort, and we do not want to disqualify you due to an oversight or misunderstanding about our process. Please bring your applications in prior to the due date so that we have time to work with you, make corrections, and give feedback if anything is wrong.
Calculation of income:
Household income is calculated based on the current income earned by all intended adult occupants of the Restricted Housing Unit at time of weighted drawing entry using the current household income to estimate an annual (12 month) income basis. Households must use their current income and may not make changes or adjustments during a drawing period.
Business income of a qualifying Household is calculated using an average of the last three (3) years of income on the business’ tax returns. A year to date profit and loss determination will also be used to calculate business income. If the business has not been operating for three (3) years, the Housing Department will average income over the time the business has been operating.
Proof of one-year full-time employment, a completed Lenders Qualification Worksheet with an up to date Credit Report (provided by a local lender, AnnualCreditReport.com, or CreditKarma.com), and a completed Home Buyer Education Class Certificate all must be attached to the Weighted Drawing Entry Sheet or on file with the Housing Department.
The Housing Department will keep your Lender's Qualification on file for one year. The Home Buyer Education Certificate is good indefinitely.
Please make sure the loan amount on your Lender's Qualification worksheet is for at least the purchase price minus your down payment of the home for which you are applying. You must be able to prove your ability to secure financing.
You may receive one additional entry into the drawing for every year of verified full-time employment (minimum of 1,560 hours) in Teton County with a maximum of 10 years/entries.
Eligibility Requirements:
- 75% of the Households combined income must be earned in Teton County
- Household must live in the home 10 months out of each year
- Household may not own any residential real estate within 150 miles of Teton County
- At least one member of the Household must work a minimum of 30 hours per week (or a minimum of 1,560 hours per year) in Teton County for at least one year
Example cost break down for a purchase price of $243,810:
3.5% down payment (required) | $8,533 |
Loan Amount | $235,277 |
Principal & Interest Payment (estimated 5%) | $1,468 |
Property Tax (estimate) | $116 |
Insurance (estimate) | $100 |
HOA Dues (estimate) | $238 |
Total Estimated Monthly Payment | $1,922 |
We recommend you speak to a local lender about all your financing options.
Forms needed to enter the weighted drawing:
- Weighted Drawing Check List
- Weighted Drawing Entry Sheet
- Lenders Qualification Worksheet
- Homebuyer Education On-Line Class Certificate ($75, ~6 hours self-paced online course)
- Affidavit of Current Employment
- Affidavit of Previous Employment